
Brügmann bluEvolution 82 MD îi conferă conceputului de eficienţă energetică, o dimensiune complet inedită. Prin utilizarea garniturii mediane în rama de mascare, se aduce o încă o îmbunătăţire proprietăţilor termice şi acustice ale ferestrei dvs. Sistemul de etanşare sofisticat oferă în plus, protecţie de încredere contra intemperiilor şi conferă casei o senzaţie de intimitate, indiferent de anotimp.
Date:
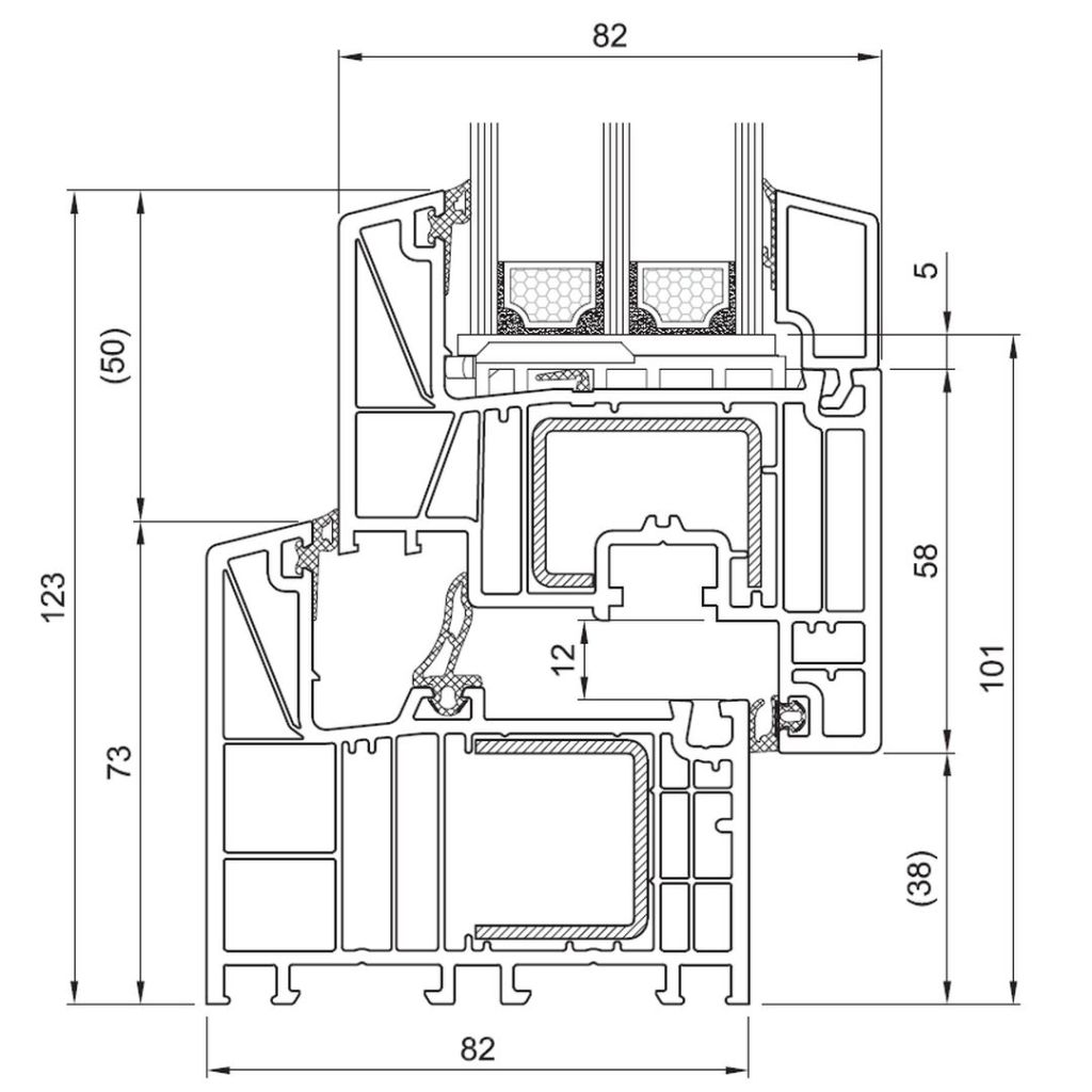
- Profil cu 6 camere
- Garnitură mediană
- Adâncime constructivă: 82 mm
- Până la Uw = 0,65 W/(m2K)
- Vitrare: până la 52 mm cu lipire prin bandă adezivă până la 54 mm
- Protecţie fonică: până la 47 dB
- Siguranţă la efracţie: până la RC 2Domenii de utilizare: Ferestre batante, basculante, oscilo-batante, uşi de intrare secundare şi oscilo-culisante în plan paralel
